145.00 m2
4
2
1
2
Maison double 5.5 pièces 145.00 m2 - Conthey
Villas jumelées de 5.5 pièces à Conthey
Situé sur la commune prisée de Conthey, au coeur du Valais central, ce nouveau projet immobilier propose 4 villas jumelées contemporaines conçues pour offrir confort, espace et qualité de vie dans un environnement privilégié. Entre vignobles, montagnes et plaine du Rhône, Conthey séduit par son cadre naturel et sa situation idéale à quelques minutes seulement de Sion et des principaux axes de communication.
Ces villas modernes et lumineuses ont été pensées pour répondre aux besoins des familles. Chaque logement dispose de 4 chambres spacieuses, permettant d'aménager aisément chambres d'enfants, bureau ou espace loisirs. Les volumes généreux et la distribution fonctionnelle offrent un cadre de vie agréable et convivial.
Le projet bénéficie d'une situation résidentielle calme tout en restant proche de toutes les commodités : écoles, commerces, transports et accès rapide à l'autoroute. La commune de Conthey offre un environnement particulièrement apprécié des familles, combinant dynamisme économique, infrastructures complètes et qualité de vie au coeur du Valais.
Points forts du projet :
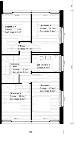
Les villas sont disposées ainsi :
Chaque maison possède 2 places de parc extérieures.
Villa A - D à Chf 890'000.00
Villa B - C à Chf 850'000.00
Ces villas représentent une opportunité idéale pour les familles à la recherche d'un logement spacieux et moderne dans une commune dynamique du Valais.
N'hésitez pas à nous contacter pour davantage d'informations.
Au plaisir de vous rencontrer.
Nos meilleures salutations.
Situé sur la commune prisée de Conthey, au coeur du Valais central, ce nouveau projet immobilier propose 4 villas jumelées contemporaines conçues pour offrir confort, espace et qualité de vie dans un environnement privilégié. Entre vignobles, montagnes et plaine du Rhône, Conthey séduit par son cadre naturel et sa situation idéale à quelques minutes seulement de Sion et des principaux axes de communication.
Ces villas modernes et lumineuses ont été pensées pour répondre aux besoins des familles. Chaque logement dispose de 4 chambres spacieuses, permettant d'aménager aisément chambres d'enfants, bureau ou espace loisirs. Les volumes généreux et la distribution fonctionnelle offrent un cadre de vie agréable et convivial.
Le projet bénéficie d'une situation résidentielle calme tout en restant proche de toutes les commodités : écoles, commerces, transports et accès rapide à l'autoroute. La commune de Conthey offre un environnement particulièrement apprécié des familles, combinant dynamisme économique, infrastructures complètes et qualité de vie au coeur du Valais.
Points forts du projet :
- 4 villas jumelées contemporaines
- 4 chambres par villa
- 2 salles d'eau
- Espaces de vie lumineux et fonctionnels
- Environnement résidentiel agréable
- Proximité des commodités et de Sion
- Finitions à choix de l'acquéreur selon budget
Les villas sont disposées ainsi :
- Hall d'entrée avec armoire
- Salle d'eau avec douche et WC
- Cuisine ouverte
- Séjour
- Salon avec accès à la terrasse
- 4 chambres à l'étage de 12m2 à 15m2
- Salle d'eau avec baignoire et WC
- Cave
Chaque maison possède 2 places de parc extérieures.
Villa A - D à Chf 890'000.00
Villa B - C à Chf 850'000.00
Ces villas représentent une opportunité idéale pour les familles à la recherche d'un logement spacieux et moderne dans une commune dynamique du Valais.
Détails des pièces
- Cave | Cellier
- Cuisine avec coin repas
- Hall d'entrée
- Local technique
- Réduit / Rangement
- Salle à manger
- Séjour
- Terrasse
Chambres
- Chambre double / parentale : 1
- Chambre simple / enfant : 3
Salles d'eau
- Salle de bain : 1
- Salle de douche : 1
- Total WC : 1
Nombre de box, garages et places de parc
- Place de parc extérieure
- 2
Environnement
- Calme | Tranquille
- Village
Vue
- Dégagée
Exposition
- Sud
Proximité
- Aire de jeux
- Banques
- Centre sportif
- Centre ville
- Centres commerciaux
- Commerces
- Crèche
- Ecoles primaires
- Ecoles secondaires
- Gare
- Poste
- Restaurant
- Sortie autoroute
- Transports publics
Intérieur
- Armoires encastrées hall
- Grand salon | séjour
- Lumineux
Equipement technique
- Chauffage principal
- Pompe à chaleur air-eau
N'hésitez pas à nous contacter pour davantage d'informations.
Au plaisir de vous rencontrer.
Nos meilleures salutations.
| Référence | FOL-13182 |
| Destination | À Vendre |
| Situation | Résidentielle |
| Disponibilité | De suite |
| Prix | CHF 890'000.- |
| Nombre de pièces | 5.5 |
| Surface habitable | 145.00 m2 |
| Vue dégagée | |
| Parking | |
| Internet | |
| Gare à proximité | |
| Année de construction | 2026 |





